仲介手数料最大無料!神戸市北区 道場町日下部 新築一戸建て 1期7号棟情報

平日 10:00~20:00、土日祝 10:00~21:00 年中無休
078-686-7376
神戸市北区 道場町日下部 新築一戸建て 1期7号棟

兵庫区 不動産神戸市北区 道場町日下部 新築一戸建て 1期7号棟

兵庫県神戸市北区道場町日下部の新築一戸建て情報は仲介手数料最大半額

〔物件ID〕 0000011859
  • 仲介手数料半額
  • 新築戸建
3,180 万円
所在地 兵庫県神戸市北区道場町日下部
交通 神鉄三田線「神鉄道場」駅 徒歩8分
建築面積 109.30m2 (33.06坪)
土地面積 163.42m2 (49.43坪)
築年月 2026年04月(令和8年04月)
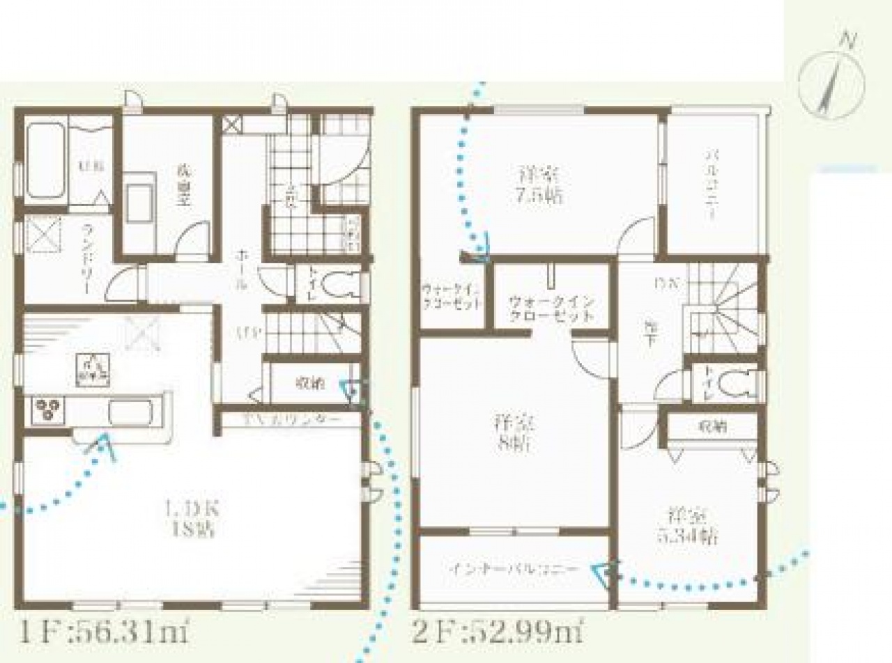
間取り 3LDK
  • 低層住居専用地域
  • 新耐震基準
  • 角地
  • 駐車場あり
  • 駐車場2台以上
  • 長期優良住宅
神戸市北区 道場町日下部 新築一戸建て 1期7号棟の物件写真
神戸市北区 道場町日下部 新築一戸建て 1期7号棟のMAP・周辺環境
神戸市北区 道場町日下部 新築一戸建て 1期7号棟の物件概要
所在地 兵庫県神戸市北区道場町日下部
交通 神鉄三田線「神鉄道場」駅 徒歩8分
価格 3,180万円
小学校区---中学校区---
建物面積 109.30m2(33.06坪) 土地面積 163.42m2(49.43坪)
間取り 3LDK 構造 木造
築年月 2026年04月(令和8年04月) 総戸数 ---
土地権利 所有権 地目 宅地
私道負担/私道面積 有/40.03m2 セットバック/距離/面積
都市計画 市街 用途地域 一低
建ぺい率 40% 容積率 80%
接道状況 角地
方向:北東      種別:公道      幅員:4.9m      間口:16.2m
方向:西      種別:私道      幅員:4.9m      間口:10.04m
駐車場 駐車場料金 ---
その他使用料 ---
現況 未完成 引渡 相談
取引態様 仲介 国土法届出 不要
設備 長期優良住宅認定通知書 / 設計住宅性能評価書 / 建設住宅性能評価書(新築時) / フラット35・S適合証明書 / 新築時・増改築時の設計図 / 地盤調査済 / 駐車2台可 / LDK18畳以上 / システムキッチン / 陽当り良好 / 全居室収納 / 閑静な住宅地 / 角地 / シャワー付洗面化粧台 / 対面式キッチン / セキュリティ充実 / 3面採光 / バリアフリー / トイレ2ヶ所 / 2階建 / 2面以上バルコニー / 南面バルコニー / 複層ガラス / 温水洗浄便座 / 床下収納 / 浴室に窓 / TVモニタ付インターホン / 都市近郊 / 通風良好 / ウォークインクローゼット / シューズインクローク / 全室2面採光 / 小学校 徒歩10分以内 / ルーフバルコニー / 平坦地 / 整備された歩道 / オール電化 / 浄水器
コメント ◇◆おすすめ情報◆◇

◆神戸電鉄【神鉄道場駅】徒歩約8分です♪
○角地 開放的&陽当り通風良好です♪
◆駐車並列2台可! 敷地約49坪!
○オール電化住宅です♪
○収納充実♪居室・床下収納・WIC・SIC
○【耐震等級3】取得!地震保険料優遇

◎住宅性能評価(建設・設計)取得
◎長期優良住宅
◎フラット35S利用可
◎地盤サポート20年保証
◎住宅性能表示制度
 ・耐震等級3
 ・耐風等級2
 ・劣化対策等級3
 ・ホルムアルデヒド発散等級3
 ・維持管理対策等級3
更新日 2026年03月17日 次回更新予定日 2026年03月31日
ローンシミュレーション
自己資金 万円
※別途、諸費用が必要です。
ローン借入額 万円
内ボーナス時支払い 万円
※ボーナス返済月の加算額ではありません。
※お借入れ予定額の50%以下の金額をご入力ください。
金利
返済年数
  • 月々(毎月返済額)
  • 0
  • ボーナス(ボーナス時加算額)
  • 0

物件情報と現況に差異がある場合、現況を優先します。
掲載物件は売却済み、売却中止、価格変更となる場合がありますので、予めご了承ください。
仲介物件には所定の仲介手数料(消費税含む)が必要です。

イオンハウジングイオンモール神戸南店 株式会社スマートスタイル
会社名 イオンハウジングイオンモール神戸南店 株式会社スマートスタイル
所在地 〒652-0844
神戸市兵庫区中之島2丁目1番1号
イオンモール神戸南3階
交通 神戸市営地下鉄海岸線 【中央市場前駅】 直結
TEL 078-686-7376
FAX 078-686-7377
ホームページHP https://www.kobe-hudousan.com/
メールアドレスE-MAIL info@kobe-hudousan.com
免許番号 兵庫県知事免許(2) 第11834号
営業時間 平日10:00~20:00 土日祝10:00~20:00
定休日 年末年始※水曜日はご予約お願いいたします
物件を探す ×
物件種別
エリア
価格
建物面積
土地面積
専有面積
間取り
駅徒歩
築年数
こだわり条件
無料会員登録非公開物件ご覧いただけます!
会員登録で
物件数が大幅アップ!

公開物件36

公開物件+
非公開物件
1,698

現在の会員数118

  • 会員登録は無料!
  • 会員専用マイページを作成!
  • 希望条件に合う新着・価格変更物件をメール配信!
  • 非公開物件が閲覧可能!
  • 他社にはない特別限定物件のご紹介チャンスあり!